After Takeoff Boost returns results to On-Screen Takeoff, you:
- Review them and determine what you want to keep and what you can delete,
- Identify which Boost Conditions you need to rename and move out of the Boost folder, (previous article)
- Reassign takeoff to different Conditions
- Making Adjustments and Corrections to the Boost Takeoff so it matches your Plan, (next article)
- Figure out what you need to takeoff manually
We're going to continue with our example of a Drywall Contractor, focused on the wall takeoff that Takeoff Boost returned.
In the previous article, we updated the "Boost Walls" Condition and moved it out of the Boost folder. All the takeoff is still associated with that single Linear Condition, though.
Our next steps:
- We need to review the Results to see what we need to fix
- Reassign the existing Boost takeoff to those Conditions
- In some cases, you may need to create new Conditions (see Related Articles for details on setting up Conditions if you need a refresher)
Review and Assess
To make reviewing the Plan a bit easier,
- Turn off all Layers other than “Image” and the "Wall" Layer Takeoff Boost created (which is where all the Wall takeoff is stored)

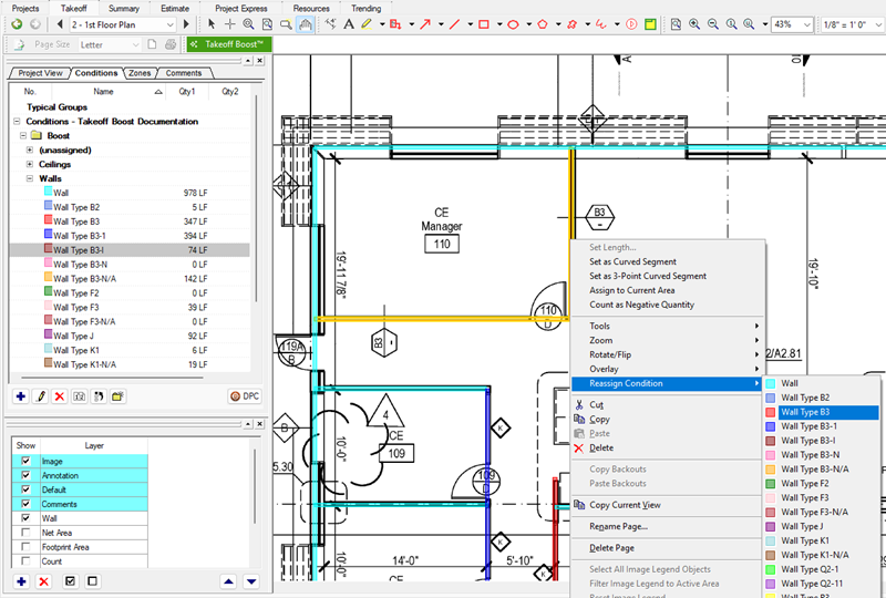
Now, notice that Takeoff Boost returned several variants of “Wall Type B3” (B3, B3-1, B3-I, B3-N, B3-N/A) - these should all be “B3”, easy fix.
Reassign Takeoff
There are two ways to reassign takeoff from one Condition to another, we cover both in 09.05 Reassigning Takeoff from One Condition to Another Existing Condition, but we are going to focus on the quickest method in this article.
You can reassign objects one-by-one or all the takeoff on a Page for one or more like Conditions.
Reassign Individual Objects
If you find one or more objects that were drawn with the incorrect Condition, you can select them individually and reassign to the correct Condtion.
There's a few ways you can select takeoff, we cover this in detail in Chapter 9. For the first example, we are going to use the click-to-select method, this is definitely not the fastest way to reassign a lot of takeoff.
- First, locate the takeoff object(s) you want to reassign, in our example below it is the golden colored wall that is currently associated with “Wall Type B3-I”
- Click the Select Tool (
) on the Tools toolbar - Click on a takeoff object to select it
- Click once to select, click again to deselect
- Hold down <SHIFT> and click other objects to select more than one

- Next, right-click on one of the selected objects, the Context Menu opens
- Click Reassign Condition

The pick-list opens populated with all Conditions of the same Style (Linears for Linear, Area for Area, Count for Count). The pick-list includes all “like” Conditions including those Takeoff Boost creates and any Conditions you created.
- Locate the appropriate Condition in the pick-list, in our example, “Wall Type B3”
- Click on “Wall Type B3”

Notice, the total for Wall Type B3-I is reduced and the total for Wall Type B3 increased.
This is fine for one or two takeoff objects that were not drawn with the correct Condition while the rest were (for example, if there really was a “Wall Type B-I” and you wanted to leave some of its takeoff assigned to it). However, in our example, all the variants of B3 are wrong, so we want a super-fast way of fixing this.
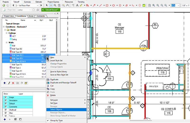
Reassign All Takeoff for One or More Conditions
On-Screen Takeoff allows you to pick one or more Conditions and then select all the takeoff for those Conditions, all at once, then reassign them as a batch to another Condition.
This only affects the current Page, takeoff drawn with these Conditions on other Pages remain associated with their original Condition.
When selecting more than one Condition, they must be of the same Style to reassign (Linears, Areas, OR Counts, no combinations).
- In the Condition Window, select one or more Conditions in the list by holding down <CTRL> and clicking on them, or
- Click the first one in continuous list, hold down the <SHIFT> key, and click last one - all Conditions in between are selected
- Right-click - the Conditions Window Context Menu opens
- Click Select Objects in the Context Menu - all objects on this Page for all the selected Conditions are selected in the Image Window

- Next, right-click within the Image Window to invoke the Context Menu
- Click on Reassign Condition to open the pick-list

- Select the Condition to which you want to reassign these objects.
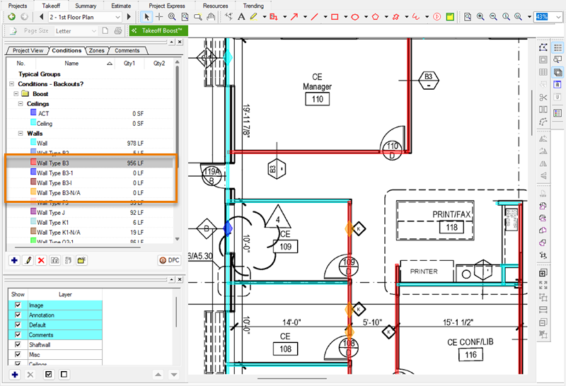
Notice that the Results for all Conditions are updated immediately (B3’s increases, the other are zeroed out).

Notice also that the takeoff now picks up the color of Wall Type B3.
For more information on using the Select and Adjust tools, see Related Articles.
In the next article, we're going to cover making minor corrections to the takeoff itself so it perfectly matches your Plans.
Editing and Moving Boost Conditions | Fine Tuning and Correcting Boost Takeoff Results ![]() |
Related Articles
- Selecting, Editing, and Deleting Takeoff and Annotation
- Duplicating a Condition and Reassigning Its Takeoff All at Once
- Creating Linear Conditions (to measure walls, electrical or plumbing runs, etc.)
- Creating Area Conditions (to measure surface areas such as ceilings, floors, slabs, etc.)
- Creating Count Conditions
- Creating Attachment Conditions
Editing and Moving Boost Conditions